2errenDesign project
預售屋裝修案/北歐風格
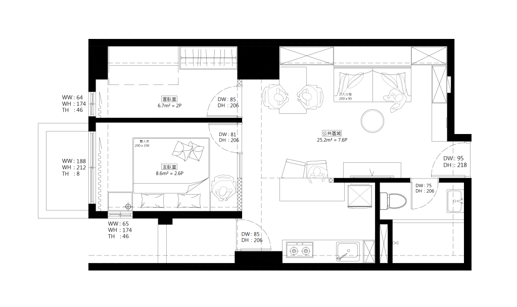
室內坪數/13坪
新店區
–
Designer: Joe
「清透敞朗、在日光下甦醒,是對於幸福的定義。」本案發揮了最佳坪效,在13坪的空間爭取最大視野與使用尺度,並考量男女屋主的生活需求,於全然開放的場域中,規劃收納機能與行走動線。轉進內部,禾熙設計更
「日光馨暖」為題,體現舒適及美感兼具的空間表情,讓屋主時時都能感受幸福溫度。













二仁設計
2errenDesign project
預售屋裝修案/北歐風格
室內坪數/13坪
新店區
–
Designer: Joe
「清透敞朗、在日光下甦醒,是對於幸福的定義。」本案發揮了最佳坪效,在13坪的空間爭取最大視野與使用尺度,並考量男女屋主的生活需求,於全然開放的場域中,規劃收納機能與行走動線。轉進內部,禾熙設計更
「日光馨暖」為題,體現舒適及美感兼具的空間表情,讓屋主時時都能感受幸福溫度。












發表留言